Get in touch with us

Building Plot With Project On An Exclusive Ocean-Front Golf Resort

REF: PP174584

District: Faro
Municipality: Lagos
Property Type: Land
Beds: 0
Bathrooms: 0
Pool
A/C
Garden
Unit Property Type Floor Bedrooms Parking Area (SQM) Outdoor Area (SQM) Price Floorplan

About Building Plot With Project On An Exclusive Ocean-Front Golf Resort

Get to know the property
Exceptional building plots with breathtaking panoramic sea and golf views on one of the Algarve's most exclusive oceanfront golf resorts.

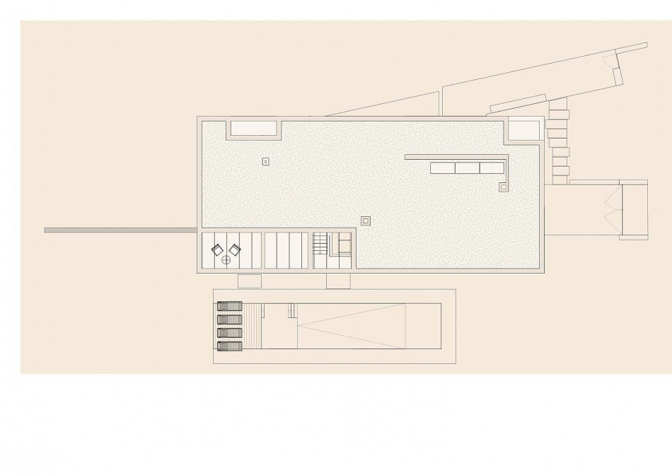
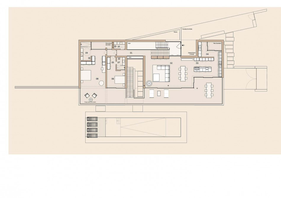
Spectacular 2385 m2 plot with a concept project designed by one of Portugal's most renowned architects in place to build your own dream property of 340 m2 plus pool terraces and garage.

Owners will receive free golf for the first year, with a 40% discount thereafter. Access to the resort's 5-star hotel facilities. 

Just a short stroll to the endless golden sands and crystal-clear waters of Meia Praia beach and the sublime, ever-changing Alvor estuary. A few minutes by car into the city of Lagos and less than an hour to Faro International Airport.

An excellent investment and opportunity to build your dream home in truly spectacular surroundings.

This front-line golf resort stands out by its privileged location facing the blue scenery of the spectacular Alvor estuary, the endless golden sands of Meia Praia beach, and panoramic views of Lagos Bay.

In perfect contrast with the green of the 27 holes of this unique golf course, designed by the legendary Robert Trent Jones II, where, along the beach, the link holes stand out. More than an integrated resort, it represents a dream that, more and more, is taking shape. Nestled in the green of the fairways, the master plan includes a 5-star hotel, a panoramic clubhouse, a driving range, housing lots for residential tourism, an exclusive beach club for residents, and many sports and leisure activities that are available.

Location

Get to know the area

Similar Properties

See other developments
AVAILABLE
€550,000
Apartment
Lisbon
3
66
REF: PW1535
AVAILABLE
€595,000
Apartment
Lagos, Faro
3
130
REF: PP175744
AVAILABLE
€1,400,000
N/A
REF: PP3042
AVAILABLE
€2,000,000
Villa
Vila Real de Santo António, Faro
5
550
REF: PP173648
PRE-RESERVED
Pre-Reserved
Apartment
Lisbon
2
92
REF: PW194
AVAILABLE
€365,000
3
130
REF: PP4264